Ba75Ba75
    • Drapeau
    • Accueil
    • Atelier
    • Services
    • Projets
    • Publications
    • Contact
    • Drapeau
    • Accueil
    • Atelier
    • Services
    • Projets
    • Publications
    • Contact
    Projets
    MU42

    MU42

    JF27

    JF27

    DR182

    DR182

    PD19

    PD19

    GI16

    GI16

    CH01

    CH01

    FL12

    FL12

    MBA24

    MBA24

    VO24

    VO24

    TA238

    TA238

    MA10

    MA10

    14JU

    14JU

    ME4400

    ME4400

    BE400

    BE400

    PA2000

    PA2000

    CO400

    CO400

    ME1300 01

    ME1300

    RO 001

    RO200

    Ecobarrio

    Ecobarrio

    PE1100

    PE1100

    FAQU

    FAQU

    AM2200

    AM2200

    AL200 02

    AL2000

    ELSAL5000

    ELSAL5000

    GO3900 LOFT

    GO3900 / LOFT

    VIAR3900

    VIAR3500

    GU13000

    GU13000

    CR1000

    CR1000

    SADU2400

    SADU2400

    HA2100

    HA2100

    GO3900-3amb

    GO3900-3amb

    FR600

    FR600

    CE1330

    CE1330

    Ecoparque

    Ecoparque intéractif de Buenos Aires

    Parque La Movediza

    Parc La Movediza

    ProCreAr - Santiago

    ProCreAr – Santiago del Estero

    RIGA

    RIGA

    CH500

    CH500

    Palais de La Poste

    Palais de La Poste

    CGP12

    CGP 12 – Avant-projet

    Rio Gallegos 02
    Rio Gallegos 01
    Rio-Gallegos-1
    Rio-Gallegos-2

    RIGA

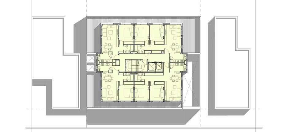
    Río Gallegos / Immeuble de logements / 2013 / 1200 m2

    Projet


    Un immeuble de logements à Río Gallegos.

    Développement du projet pour un immeuble résidentiel R+5 dans la ville de Río Gallegos, Argentine.

    Voir plus de projets

    MU42

    Résidentiel
    MU42

    JF27

    Résidentiel
    JF27

    DR182

    Résidentiel
    DR182

    PD19

    Résidentiel
    PD19

    GI16

    Résidentiel
    GI16

    CH01

    Résidentiel
    CH01

    FL12

    Résidentiel
    FL12

    MBA24

    Résidentiel
    MBA24

    VO24

    Résidentiel
    VO24

    TA238

    Résidentiel
    TA238

    MA10

    Résidentiel
    MA10

    14JU

    Résidentiel
    14JU

    ME4400

    Résidentiel
    ME4400

    BE400

    Commercial Résidentiel
    BE400

    PA2000

    Résidentiel
    PA2000

    CO400

    Résidentiel
    CO400

    ME1300

    Résidentiel
    ME1300 01

    RO200

    Résidentiel
    RO 001

    Ecobarrio

    Résidentiel
    Ecobarrio

    PE1100

    Commercial
    PE1100

    FAQU

    Industriel
    FAQU

    AM2200

    Résidentiel
    AM2200

    AL2000

    Résidentiel
    AL200 02

    ELSAL5000

    Résidentiel
    ELSAL5000

    GO3900 / LOFT

    Résidentiel
    GO3900 LOFT

    VIAR3500

    Résidentiel
    VIAR3900

    GU13000

    Résidentiel
    GU13000

    CR1000

    Résidentiel
    CR1000

    SADU2400

    Résidentiel
    SADU2400

    HA2100

    Résidentiel
    HA2100

    GO3900-3amb

    Résidentiel
    GO3900-3amb

    FR600

    Résidentiel
    FR600

    CE1330

    Résidentiel
    CE1330

    Ecoparque intéractif de Buenos Aires

    Concours Urbanisme
    Ecoparque

    Parc La Movediza

    Urbanisme
    Parque La Movediza

    ProCreAr – Santiago del Estero

    Résidentiel
    ProCreAr - Santiago

    RIGA

    Résidentiel
    RIGA

    CH500

    Commercial
    CH500

    Palais de La Poste

    Commercial Concours
    Palais de La Poste

    CGP 12 – Avant-projet

    Commercial
    CGP12
    © (Ba75) - Tous les droits sont réservés
    En utilisant ce site, vous acceptez notre utilisation des cookies. Nous utilisons des cookies pour vous fournir une expérience améliorée et pour optimiser le bon fonctionnement de notre site Web.